Oven

oven is turned off but still on,gives F1 on display,unplugged it for a few mins but still comes on.any thoughts on whats wrong.

Here are your parts
http://www.appliancepartspros.com/partsearch/modelsearch.aspx?model=79093751100

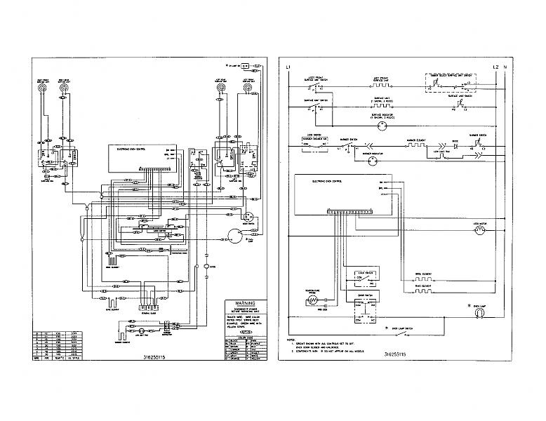
See the attachment for the wiring diagram.
http://www.appliancepartspros.com/partsearch/modelsearch.aspx?model=79093751100

Here is a manual
http://appliancedigest.com/index.php?/files/go/f23a260eafc3c7e192f63a70c257ab35/frigidaire-30-inch-freestanding-electric-ranges-2001-5995361523-service-manual
You have to join the site to download the manual but it is free and this is a very good site for manuals and other info for the appliance repair DIYer.

The manual covers a number of different unis so you have to be careful that the info actually applies to your unit. I believe your control board is an ES300.

Looks like F1 is a control board error.
I would also check that the sensor resistance is OK.

AP3672811

You may also need an overlay as sometimes they will not come off without damage.
AP2126498
Note AP2593012 is the same but black
93751100.jpg (58.9 KB)